CRL SSR Système de porte coulissante de 102 mm (4 po), format OX/XO, profilé inférieur de 152 mm (6 po) et profilé supérieur de 6,12 m (241 po), acier inoxydable brossé - 6SSR2CBS

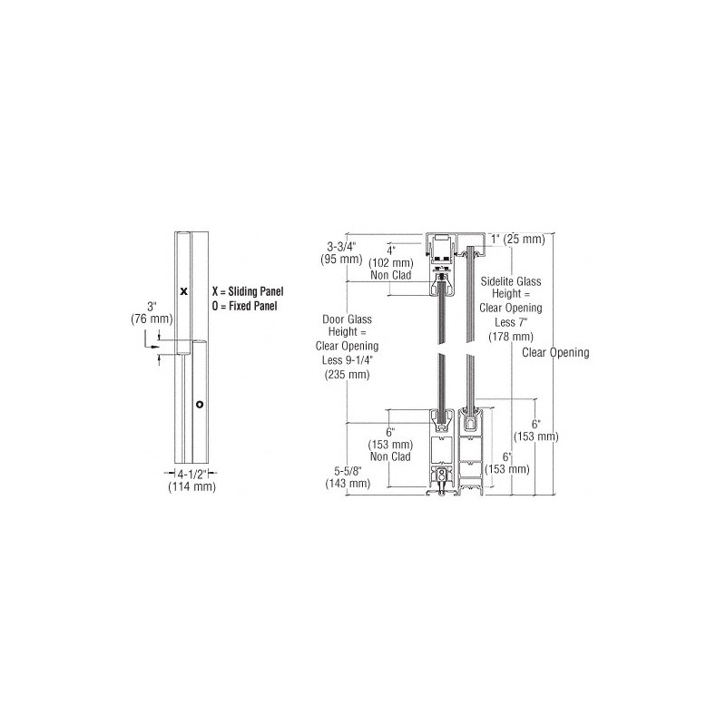
Le système de porte coulissante doté d'un rail inférieur SSR CRL, avec profilés supérieurs carrés de 101,6 mm (4 po) et profilés inférieurs carrés de 152,4 mm (6 po), fait appel à notre célèbre système de verrouillage pour verre Wedge-Lock disponible avec les profilés de porte des séries DR4S et DR6S sur tous les panneaux coulissants. Ils peuvent être commandés avec ou sans serrure au niveau du profilé inférieur. Les panneaux fixes sont dotés de nos très prisés profilés de partitions fixes de la série SR6S équipés de vinyle de calfeutrement sur la partie inférieure du panneau, et d'un profilé intégré pour vitrage équipé de vinyle de calfeutrement sur le rail supérieur. Largeur de porte maximum : 1,22 m (48 po) ; hauteur de porte maximum : 2,74 m (108 po) ; poids maximum : 106 kg (234 lb). Tous les panneaux sont fabriqués sur mesure conformément à votre cahier des charges. REMARQUE : Disponible uniquement sur commande. La plupart des commandes peuvent être usinées sous cinq jours ouvrés à notre usine de Los Angeles, Californie. Veuillez contacter le service technico-commercial CRL au (800) 421-6144 depuis les États-Unis ou au (877) 421-6144 depuis le Canada et demander le poste 7700. Vous pouvez également envoyer un email via notre site Web : www.crlaurence.com. Cliquez sur « Contactez-nous », puis sur « Service technico-commercial ».
Avec profilés supérieurs de porte carrés 102 mm (4 po) série DR4S, profilés inférieurs de porte carrés 152 mm (6 po) série DR6S et profilés carrés pour partition fixe 152 mm (6 po) série SR6S
Disponible dans plusieurs finis architecturaux
Pour verre trempé de 9,5 ou 12,7 mm (3/8 ou 1/2 po) d'épaisseur
Numro d'article: 6SSR2CBS
galement disponible dans ces trois catalogues:
USAL14 U.S. Aluminum Architectural Design Manual, PAGE 29G1
USAL15 U.S. Aluminum Curtain Wall Catalog, PAGE 29P1
CRL63A Architectural Hardware Master, PAGE 336H
CRL14D Door and Entrance Catalog, PAGE 394D
Couleur: Acier inoxydable bross
Expdier par: Non expdi par UPS - Uniquement par transporteur
NUMRO D'ARTICLE DESCRIPTION COULEUR
6SSR2CBL CRL SSR Systme de porte coulissante carr de 102 mm (4 po), format OX/XO, profil infrieur de 152 mm (6 po) et profil suprieur de 6,12 m (241 po), pulvrisation noire
6SSR2CBS CRL SSR Systme de porte coulissante de 102 mm (4 po), format OX/XO, profil infrieur de 152 mm (6 po) et profil suprieur de 6,12 m (241 po), acier inoxydable bross
6SSR2CDU CRL SSR Systme de porte coulissante carr, format OX/XO, 6,12 m (241 po), profil suprieur de 102 mm (4 po), profil infrieur de 152 mm (6 po), bronze anodis noir
6SSR2CPB CRL SSR Systme de porte coulissante de 102 mm (4 po), format OX/XO, profil infrieur de 152 mm (6 po) et profil suprieur de 6,12 m (241 po), laiton poli
6SSR2CPS CRL SSR Systme de porte coulissante de 102 mm (4 po), format OX/XO, profil infrieur de 152 mm (6 po) et profil suprieur de 6,12 m (241 po), acier inoxydable poli
6SSR2CSA CRL SSR Systme de porte coulissante, de 102 mm (4 po), format OX/XO, profil infrieur de 152 mm (6 po) et profil suprieur de 6,12 m (241 po), anodis satin
6SSR2CSB CRL SSR Systme de porte coulissante de 102 mm (4 po), format OX/XO, profil infrieur de 152 mm (6 po) et profil suprieur de 6,12 m (241 po), laiton satin
Aucune information complmentaire sur l'article de disponible :
La plupart des poids d'expdition sont approximatifs et n'ont pas t vrifis. Si vous avez besoin du poids exact pour calculer le cot de l'expdition et ce cot est ncessaire pour complter la commande, veuillez l'obtenir avant de soumettre votre demande en prenant le contact avec le service client Glass Experts. Les images des produits proviennent des produits actuels ou proches. Couleurs peuvent varier selon la carte vido de votre ordinateur et selon le rglage des color de votre cran.

Références spécifiques